Toronto Daycare Designed by SODA Sharma office of design + architecture inc. New Montessori Daycare in Toronto Ontario

Lawrence West Montessori

Project Type: Commercial Daycare
Location: Toronto, Ontario
Scope: Demolition + Interior Fit-Out
Status: Submitted for Permit
Services: Architecture, Design Coordination, Visualization

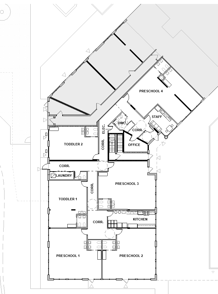
Our Lawrence Avenue West daycare project in Toronto exemplifies SODA’s ability to navigate complex municipal processes while delivering high-quality educational environments. This 8,000 square foot Montessori facility, paired with a 4,000 square foot secured outdoor playground, was designed to serve a growing community with modern, safe, and flexible early-learning spaces.

The project was approached in two coordinated phases that advanced simultaneously. While preparing the full building permit package, our team also initiated a minor variance application to expand both the interior program area and the outdoor playground beyond what the existing zoning allowed. This strategic parallel process saved our clients significant time and ensured that the design vision was never compromised.

The result is a fully approved, highly efficient childcare centre that maximizes its footprint while meeting all regulatory requirements and delivered through a streamlined, proactive, and deeply coordinated approach. This project demonstrates SODA’s expertise in early-education design and our commitment to guiding clients through complex approvals with clarity, confidence, and precision.

A New Beginning…

Request a Consultation
Our Approach
Previous
Previous

Applewood Montessori

Next
Next

Kindness Montessori